Къща – Кърджали, Веселчане
- 498.737 лв. 255.000€
Преглед
- Къща
- 0
- Тухла
- 215
- 2026
Описание
ТОП ЛОКАЦИЯ ! ! ! ПАНОРАМНА ГЛЕДКА ! ! ! ЛУКСОЗНО ИЗПЪЛНЕНИЕ ! ! !
Брокер Жокер представя на Вашето внимание комплекс от 10 модерни еднофамилни къщи, разположени в изключително атрактивения и бързоразвиващ се район, във вилната зона между квартал Веселчане и село Петлино.
Към момента 4 от къщите са продадени, а в продажба са общо 6 свободни имота със следното функционално разпределение:
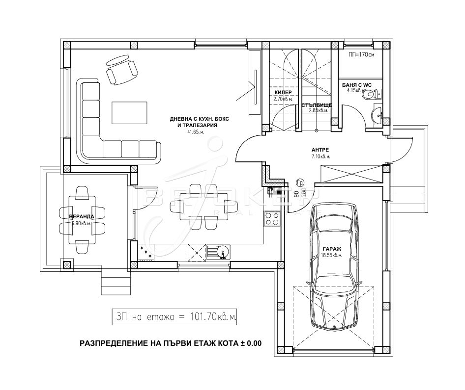
Първи етаж: Антре, просторна и слънчева дневна с кухненски бокс и трапезария с директен излаз на веранда, килер, баня с тоалетна, топла връзка към гараж и вътрешно стълбище.
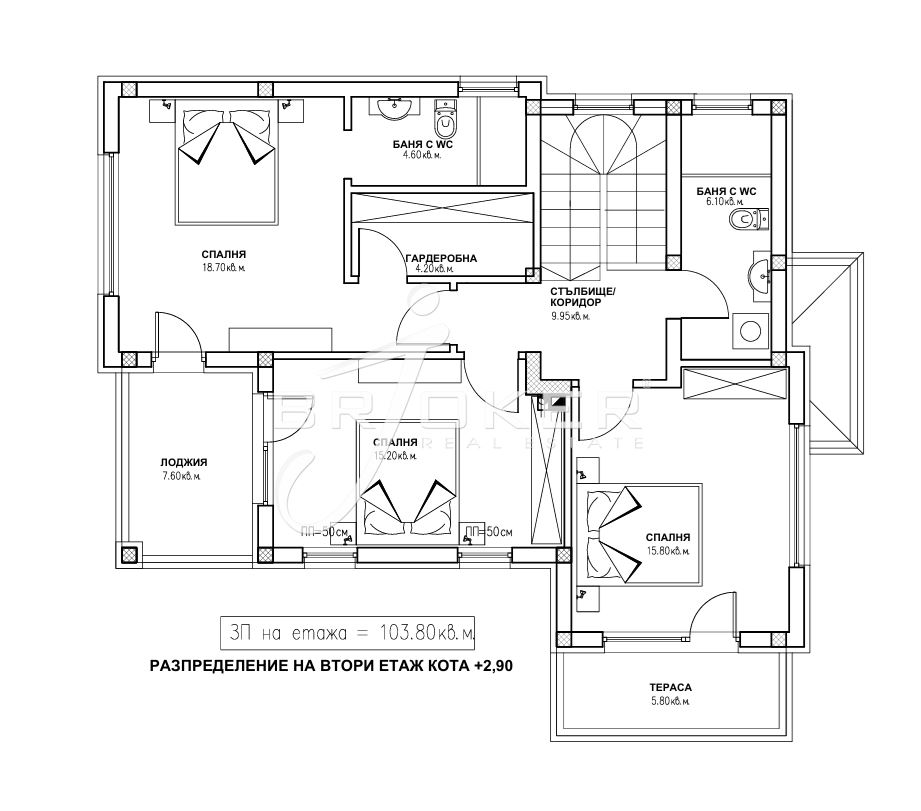
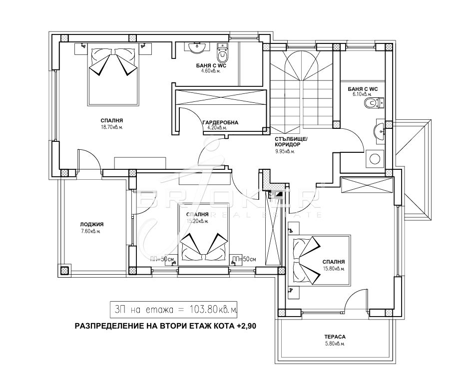
Втори етаж: Коридор, просторна родителска спалня със собствена гардеробна и баня с тоалетна, две допълнителни спални (едната с излаз на лоджия, другата с тераса) и обща баня с тоалетна.
Налични опции за избор:
Къща тип А (3 бр.)
РЗП: 215 кв.м. Двор: 500 кв.м.
Къща тип Б (3 бр.)
РЗП: 215 кв.м. Двор: 400 кв.м.
Имотите са проектирани с мисъл за максимален комфорт, като съчетават модерна архитектура и близост до природата. Идеални са за семейства, търсещи спокойствие, без да се лишават от удобствата на градската среда.
За Ваше улеснение прилагаме схема на разпределение. За повече информация и детайли се обадете сега и цитирайте този код: 1259
Адрес
-
Град: Кърджали
-
Район: Веселчане
-
Държава: България
Детайли
Променено на април 22, 2026 в 4:59 am-
ID на имота HZ1259
-
Цена 498.737 лв. 255.000€
-
Размер на имота 215
-
Двор 500
-
Спалня 0
-
Стая 0
-
Баня 0
-
Година на строителство 2026
-
Тип имот Къща
-
Статус на имота Продава
-
Етажи 2
-
Вид строителство Тухла
-
Цена кв.м. 1186
-
Ново строителство Да
Ипотечен калкулатор
-
Първоначалнa вноска
-
Сума на кредита
-
Месечна вноска
Подобни
- Жулиен Гавраилов











